AGENCIA SMW


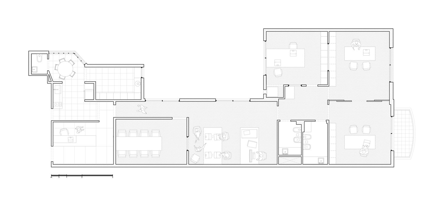
Se ha llevado a cabo un trabajo de restauración sobre la estructura original de un antiguo departamento de principios del siglo XX, manteniendo y poniendo en valor todos los detalles arquitectónicos distintivos. Para adaptar los nuevos usos para el trabajo del personal de una agencia de publicidad, se ha decidido unificar estaciones de trabajo y diseñar posiciones móviles en módulos de mesas de trabajo, que, de acuerdo a las necesidades, se pueden configurar diferentes equipos de trabajo en diferentes posiciones.


Sobre la base de un departamento clásico ubicado en el barrio de Recoleta, en la ciudad de Buenos Aires, se ha trabajado con distintos grupos de profesionales, donde restauradores, carpinteros, ebanistas, yeseros y herreros de estilo, llevaron a cabo las obras de valor in-situ, mientras que talleres externos produjeron módulos de muebles, que configuran los nuevos usos para este departamento, originalmente de  vivienda. El equipamiento responde a soluciones de usos contemporáneos para la agencia creativa, diseñados en una serie de modelos utilitarios para cada integrante de la empresa.













CREDITOS
Buenos Aires, 2018
Concepto y fabricación: FLORA Oficina de arquitectura
Equipo: Sofía Lado, Camila Bolado
Fotografía: Tomás Péreza Amenta



Mark